Showroom Layout

Showroom Layout

Ajay Shrestha
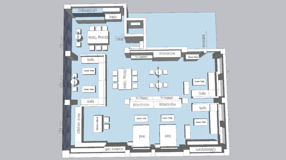
Whole Office Showroom Layout only. Each scale is measured in mm and & inch.
Default Title